Características ambientales
El proyecto se emplaza en la ciudad de Junín, perteneciente a la zona bioambiental III con un clima templado húmedo con veranos de temperatura promedio 22.5°C e inviernos con medias de 9.5°C.
La amplitud térmica se mantiene constante durante todo el año con 12°C.
La humedad relativa media anual es del 75% (82% invierno y 65% verano).
Las precipitaciones se producen sobre todo de noviembre a marzo y rondan los 1.000 mm anuales.
Los vientos predominantes de la zona son el Pampero en verano, proveniente del sur-oeste y la Sudestada en otoño y primavera, proveniente del sureste-este con una velocidad promedio de 13 km/h.
Dichos factores fueron el punto de partida para el planteo y generación de nuestra propuesta.
Consideramos que los principales factores climáticos a controlar son las temperaturas y humedad relativamente altas en verano.
Planteo Formal-Funcional
A nivel urbano, una de las principales intenciones fue la de generar, a través del retiro de la edificación, una transición entre el espacio público y privado para una mejor integración con su entorno.
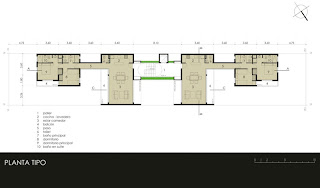
Proyectamos un edificio constituido por 2 bloques, vinculados por un núcleo de circulación central abierto.
Cada bloque, en planta, constituye una unidad la cual posee un patio interno generando así mayor asoleamiento y mejor ventilación.
Con el objetivo de incrementar la superficie de áreas verdes, planteamos espacios verdes en planta baja y en terraza generando áreas de esparcimiento en distintos niveles.
La orientación de los espacios responde a la trayectoria del sol.
Se dispusieron las áreas servidas hacia el este/norte dejando las áreas de servicio hacia el oeste. De esta forma generamos una barrera térmica de protección sobre los dormitorios y áreas de estar.
Este planteo disminuye las ganancias de calor sobre la fachada oeste, muy castigada en primavera y verano.
Cada bloque contiene una función determinada por lo que el tratamiento de sus fachadas responde a las actividades contenidas.
De esta forma, no obtenemos mayor iluminación en ambientes que no la necesitan.
El planteo estructural responde a un modulo, el cual sirve para racionalizar la propuesta de manera constructiva como económica.
La estructura está resuelta con columnas, vigas y losas de hormigón armado ya que consideramos que la sustentabilidad parte de utilizar materiales de producción local como así también su mano de obra.
A su vez, este modulo (0.90 m) se usó en el dimensionado de las aberturas de todo el conjunto.
Entendemos que la sustentabilidad puede ser comprendida desde 2 puntos de vista diferentes y aun así complementarios.
Uno tangible y mensurable, que atañe a los recursos y tecnologías disponibles y aplicables a la arquitectura como ciencia. En nuestro proyecto se manifiesta en:
- La correcta elección de los materiales.
- El planteo volumétrico y su organización espacial para un aprovechamiento de las condiciones de asoleamiento y ventilación.
- La propuesta de sistemas para reducir el consumo de recursos naturales tales como agua potable, energía eléctrica, gas, etc.
- La utilización de cubiertas ajardinadas como aislante térmico en las losas superiores junto al aprovechamiento de los colectores solares como sombrillas de las demás losas.
El otro punto de vista se basa en entender la sustentabilidad como parte indispensable para una mejor calidad de vida del ser humano, ya que simplemente es la forma en que uno se relaciona con la naturaleza y su entorno.
Dada la complejidad que conlleva materializar dicha "sustentabilidad" en objetos arquitectónicos, encaramos el desafío generando imaginarios espaciales donde el acento este puesto en la calidad humana y ambiental, y en donde todos los recursos materiales disponibles (incluyendo la luz y el aire) se manipulan y ordenan para generar ámbitos, ya sean exteriores o interiores, que promuevan una sensación de bienestar y confort en las personas.
















No hay comentarios:
Publicar un comentario